












Am placerea sa va propun spre inchiriere acest spatiu de birouri unic, localizat intr-o clădire emblematica in peisajul imobiliar din nordul Bucureștiului, CASTEL in incinta domeniului CARO HOTEL.
Ideal pentru firme IT, consultanta financiara, birou design, arhutectura, servicii juridice etc.
Stilul arhitectural al clădirii datează din perioada interbelică, iar fațada originală a fost construită în anul 1930. În era comunistă, terenul găzduia o fabrică de glucoză, care a dat și numele străzii din apropiere.
Proprietarul a optat să conserve amprenta industrială în design, în detalii surprinzătoare și chiar în denumirile spațiilor de relaxare.
Cărămida roșie, accentele metalice, mașinăriile recondiționate, culorile calde și texturile vibrante, toate acestea sunt mărturii ale diverselor etape din viața palpitantă a acestui loc.
Spatiile verzi și de relaxare, restaurantele din incinta hotelului, sunt din abundentă, infrastructura întregului domeniu susține un model de business modern, elevat și elegant.
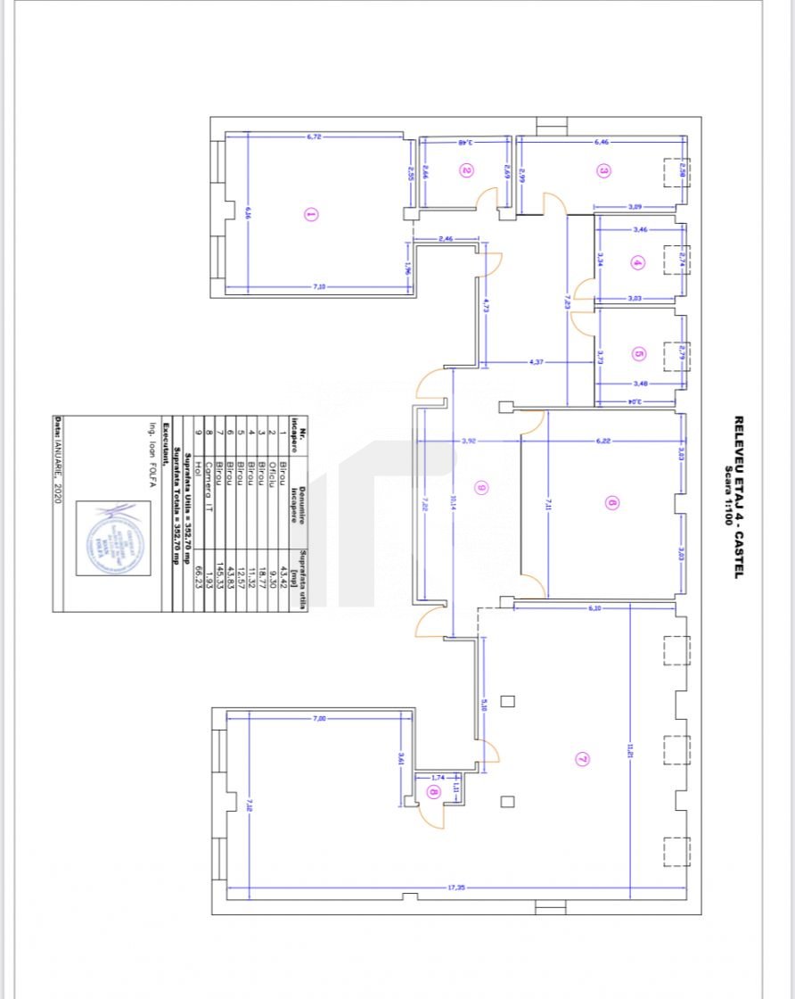
Biroul se afla la etajul 4 având vedere către toate cele patru laturi ale clădirii, Bd. Barbu Văcărescu, clădirea principala a recepției hotelului , Promenada Mall.
Beneficiază de doua grupuri sanitare (femei/ bărbați) și acces la terasa generoasa deschisă in aer liber.
Spatiul este partial compartimentat și poate fi in continuare amenajat asa cum se doneste de către viitorul chirias.
Geamurile camerei de ședințe sunt culisante și permit lărgirea spațiului către holul generos de la intrare.
Exista o chicinetă mobilată (neutilata) unde angajații pot servi masa și se poare servi ca zona de pregătire refreshments pentru întâlniri sau evenimente.
Accesul in clădire se face pe baza de card si cod de acces, sunt doua intrări, atât in clădire cât și in spatiul de birouri (zorele se por folosi separat dacă se dorește).
Locul de parcare se achita separat, 85euro/ luna + TVA, acces individual pentru doua autoturisme (NU simultan).
Pret chirie: 14euro/mp/luna + TVA
Taxa de servicii: 3,5euro/mp/ luna+ TVA.
Energia electrică se achita separat. Valabilitatea contractului : min 36 luni.
Onorariul agentiei pentru serviciile profesionale: standard.